Lone Star are delighted to announce the sale of the site at Wellesbourne to Youngman Lovell

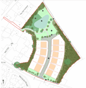
Lone Star have worked behind the scenes with Youngman Lovell throughout the planning process, achieving a planning consent in April 2023. The site was promoted through the emerging Site Allocations Plan and was included as a draft allocation for 14 Self and Custom Build homes. Throughout the application process there was a series of amendments to the scheme to address concerns raised by planning policy, highways, landscape and ecology. This resulted in the proposal being reduced to 10 dwellings to mitigate landscape impacts and to provide 11.8% BNG on-site. The consultant team worked very hard to overcome all technical issues and as a result, the scheme was presented to committee with no outstanding technical objections.
We now look forward to seeing Youngman Lovell develop the site. If you wish to find out more about Youngman Lovell and keep up to date on their progress at Wellesbourne, you can view their website (click here)